PROVISIONSFREI: 2-Zimmer-Wohnung mit Loggia und Tiefgaragenplatz in Hannover-List

30177 Hannover, Wohnung zum Kauf

Kontaktdaten

Sebastian Much, Dahmann Immobilien GmbH

Objektdaten

  • Objekt-ID
    M6423
  • Objekttyp
    Wohnung
  • Adresse
    30177 Hannover
    Niedersachsen
  • Etage
    5
  • Etagen im Haus
    5
  • Wohnfläche ca.
    57 m²
  • Zimmer
    2
  • Badezimmer
    1
  • Balkone
    1
  • Heizungsart
    Zentralheizung
  • Wesentlicher Energieträger
    Gas
  • Baujahr
    1976
  • Zustand
    teil-/vollrenoviert
  • Ausstattung
    Standard
  • Tief­garagen­stell­platz
    1 Stellplatz
  • Verfügbar ab
    sofort
  • Hausgeld
    553,74 EUR
  • Kaufpreis
    138.000 EUR

Ausstattung / Merkmale

  • ✓ Abstellraum
  • ✓ Badewanne
  • ✓ Balkon
  • ✓ Fliesenboden
  • ✓ Keller
  • ✓ Laminatboden
  • ✓ Personenaufzug
  • ✓ Tiefgarage

Energieausweis

  • Energieausweistyp
    Verbrauchs­ausweis
  • Ausstellungsdatum
    04.02.2019
  • Gültig bis
    04.02.2029
  • Gebäudeart
    Wohngebäude
  • Baujahr
    1976
  • Primärenergieträger
    Gas
  • Endenergie­verbrauch
    84,00 kWh/(m²·a)
  • Energie­effizienz­klasse
    C
0 25 50 75 100 125 150 175 200 225 250+ H G F E D C B A A+ H G F E D C B A A+ Endenergieverbrauch 84,00 kWh/(m²·a)

Objekt­beschreibung

Beschreibung

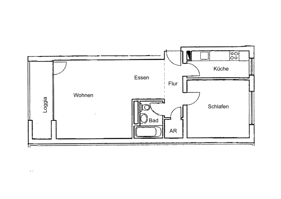
In der fünften Etage eines modernisierten Mehrfamilienhauses gelegen, bietet diese 2-Zimmer-Wohnung mit Loggia und Tiefgaragenstellplatz eine durchdachte Raumstruktur auf 57 m². Das Gebäude hat aktuell ein neues Dach und eine frisch gestrichene Fassade erhalten – Maßnahmen, die den Werterhalt nachhaltig sichern.

Ausstattung

Alle Details finden Sie in unserem Exposé.

Lage

Die Wohnung befindet sich im beliebten Stadtteil List. Diese Wohngegend verbindet städtische Infrastruktur mit viel Grün und einer hohen Lebensqualität.

Die ungefähre Position der Immobilie auf Google Maps ansehen (Link auf externe Website)

Direktanfrage

* Pflichtangaben
 SSL-verschlüsselt
Immobiliendaten-Import und Darstellung für WordPress: WP-ImmoMakler